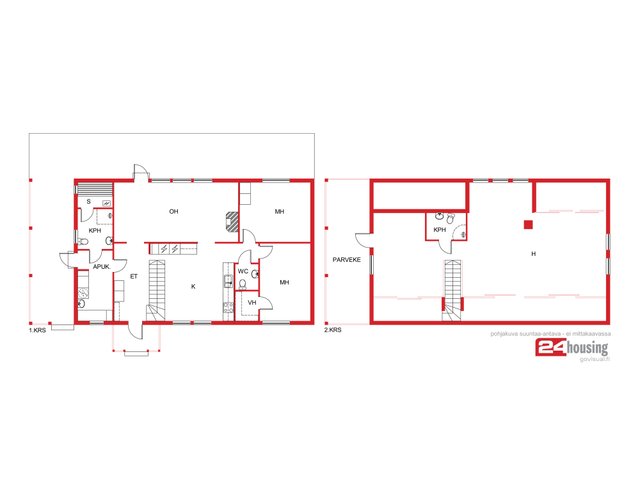
Tämä viehättävä omakotitalo Porvoon Säterinhaassa tarjoaa erinomaiset puitteet perhe-elämälle. Vuonna 2008 valmistunut talo sijaitsee omalla 1139 m² tontilla, ja sen 164,50 m² tilat jakautuvat kahteen kerrokseen. Alakerran olohuoneessa on tunnelmallinen varaava takka, joka luo lämpöä ja viihtyisyyttä kylminä talvi-iltoina. Keittiö on varusteltu nykyaikaisesti, ja sieltä löytyy kaikki tarvittava arjen sujuvuuteen.
Yläkerta on avointa tilaa, jossa on mahdollisuus muokata tilat perheen tarpeiden mukaan, esimerkiksi lisäämällä makuuhuoneita. Tällä hetkellä talossa on kolme makuuhuonetta, mutta tilaa on muokattavissa perheen kasvaessa. Talossa on kaksi kylpyhuonetta ja kolme wc:tä, mikä helpottaa arjen kiireitä.
Talosta löytyy myös parveke ja terassi, jotka tarjoavat mukavasti lisätilaa. Energiatehokkuutta lisää poistoilmalämpöpumppu, joka on uusittu vuonna 2018.
Kiinteistöllä on myös kahden auton autotalli.
Säterinhaka on rauhallinen asuinalue, joka sijaitsee lähellä Porvoon keskustaa, tarjoten hyvät palvelut ja kulkuyhteydet.
Tartu tilaisuuteen ja tee tästä talosta perheesi uusi koti!
Tiedustelut:
Sami Paananen
24Housing Oy LKV
045 899 2778 
Kohdetta myy

Esittely
Perustiedot
Ylä-Säterinkatu 18
06100 Porvoo
Hinta ja kustannukset
Laskettu velattomasta myyntihinnasta.
Lisätiedot
Kiuas: Sähkökiuas
Asunnon tilat ja materiaalit
Seinien pintamateriaali: Tapetti
Lattian pintamateriaali: Muovimatto
Seinien pintamateriaali: Tapetti
Lattian pintamateriaali: Parketti
Seinien pintamateriaali: Tapetti
Lattian pintamateriaali: Laminaatti
Varusteet: WC-istuin ja suihku
Lattian pintamateriaali: Muovimatto
Katon pintamateriaali: Pelti




































