Modernia asumista luonnon syleilyssä – upea omakotitalo Nupurissa
Tervetuloa Nupuriin, Nuuksion kansallispuiston ja Nupurinjärven kupeeseen! Täällä nautit luonnonrauhasta ja järvimaisemasta vaikkapa Nupurinjärven uudella laiturilla sekä alueen monipuolisista ulkoilumahdollisuuksista. Satoja metrejä pitkät pitkospuut, lintutorni, luontopolut sekä mahdollisuudet maastopyöräilyyn, polkujuoksuun, melontaan, suunnistukseen ja retkeilyyn tekevät arjesta elämyksen.
Modernin ja kehittyvän kylän vahvuuksia ovat kauniit järvimaisemat, hyvät kulkuyhteydet ja kattavat lähipalvelut. Bussipysäkki sijaitsee lähettyvillä, ja omalla autolla pääset sujuvasti valtaväylille. Myös pyöräilyreitit ovat erinomaiset – Nuuksion kansallispuisto on vain kivenheiton päässä.
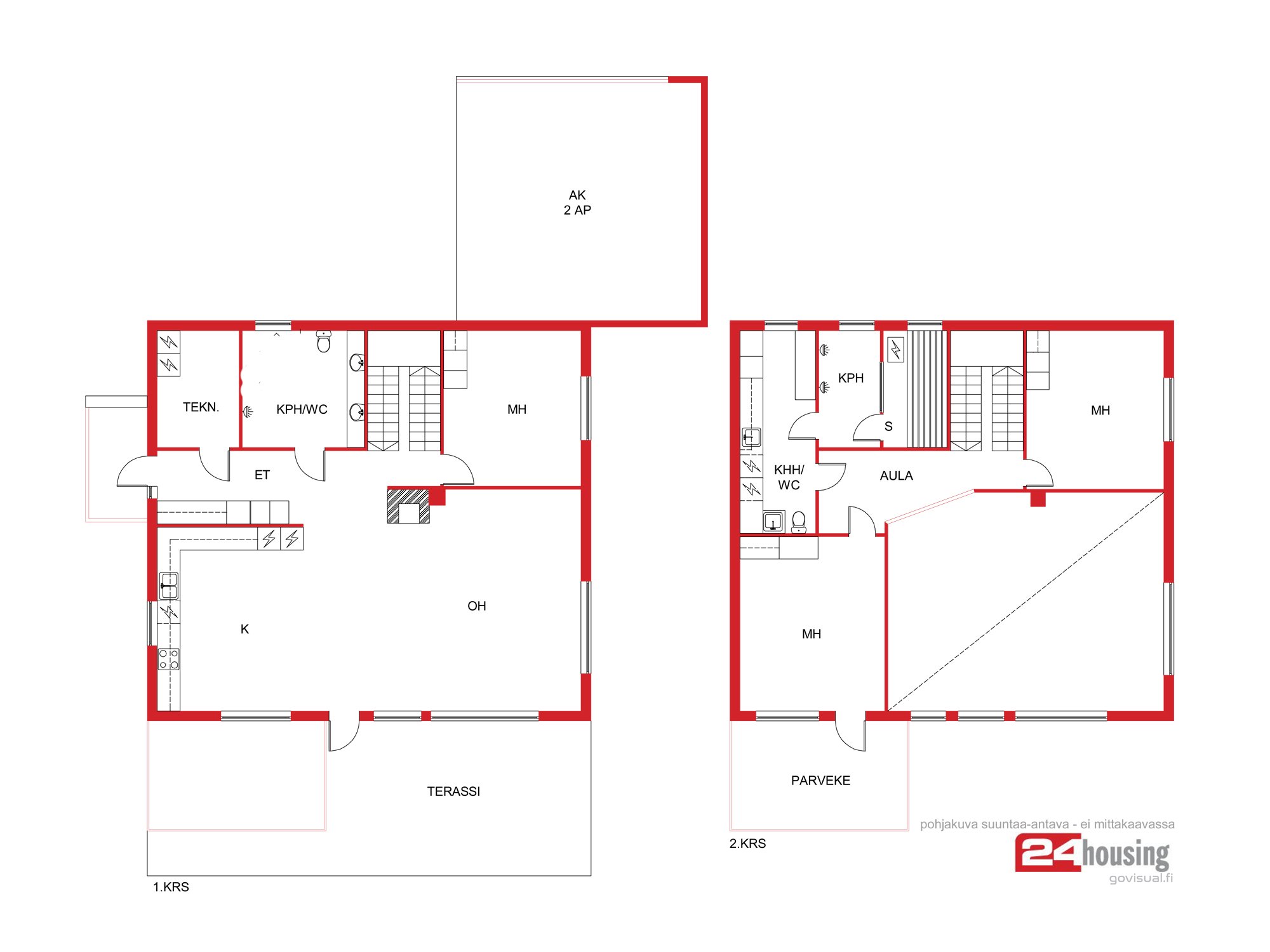
Tämä tyylikäs, tasokkaasti toteutettu ja viimeistelty vuonna 2020 valmistunut omakotitalo sijaitsee omalla tontilla. Kodin sydän on avara olohuone, jonka korkea huonekorkeus ja suuret ikkunat tuovat tilaan valoa ja avaruutta. Parvekkeelta ja osittain lasitetulta terassilta aukeavat näkymät Nupurinjärvelle. Moderni ja hyvin varusteltu keittiö palvelee vaativampaakin kotikokkia.
Arjen sujuvuus on onnistuttu toteuttamaan hyvin: tyylikkäät kylpyhuoneet löytyvät molemmista kerroksista, ja tilavat makuuhuoneet jakautuvat käytännöllisesti – kaksi yläkertaan ja yksi alakertaan. Helppohoitoinen, asfaltoitu piha ja autokatos kahdelle autolle (varaus sähköauton lataukselle) sekä lämmin varasto.
Tervetuloa tutustumaan!
Esittelyt ja lisätiedot: 0400 684 411 / heikki.niskanen@24housing.com

Kohdetta myy

Esittely
Perustiedot
Nupurinkartanontie 23
02820 Espoo
Hinta ja kustannukset
Laskettu velattomasta myyntihinnasta.
Lisätiedot
Kiuas: Sähkökiuas
Osittain lasitettu terassi
Asunnon tilat ja materiaalit
Varusteet: Jääkaappi, erillinen pakastin, liesi, liesituuletin, mikroaaltouuni, astianpesukone ja erillisuuni
Seinien pintamateriaali: Maali ja välitila lasia
Lattian pintamateriaali: Laminaatti
Seinien pintamateriaali: Maali
Lattian pintamateriaali: Laminaatti
Seinien pintamateriaali: Maali
Varusteet: Suihku
Seinien pintamateriaali: Kaakeli
Lattian pintamateriaali: Laatta
Seinien pintamateriaali: Kaakeli
Lattian pintamateriaali: Laatta
Seinien pintamateriaali: Maali ja välitila laatoitettu
Lattian pintamateriaali: Laatta
Katon pintamateriaali: Tiili
Asunnon tontti
Muut lisätiedot
Päiväkoti: Nupurin päiväkoti n. 600 m























